Sarah, a new residential client from Jacksonville, Florida, needed a detailed site plan to get her gazebo permit approved.
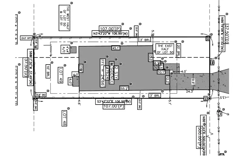
She already had an 11×11 concrete base installed in her backyard and wanted to add a gazebo on top of it. To proceed, she needed a clear plan showing the structure and its placement in relation to the rest of the property.
Sarah chose our Medium Package Site Plan with a rush 6-hour delivery option.
She requested the final plan in PDF format.
To help us get started, she shared a sketch site plan, gazebo details, and a previous plan, giving our team a strong visual reference of her property and the planned structure.
Address Only – No Site Visit Required

Excellent 4.9/5 based on 947 reviews
Sarah Y. “Got the information so fast! Thanks a bunch!”
Using Sarah’s materials, our designers created a non-certified site plan accepted by most townships, with no site visit required, making the process quicker and more cost-effective for her.
We completed the site plan faster than expected, in just 5 hours.
The final plan clearly showed the gazebo positioned on the existing concrete base, ready for permit submission.
Sarah’s Medium Site Plan drawing incuded all necessary information like:
REVISIONS
Sarah requested two revisions, which we handled quickly and at no additional cost.
The updates included small placement adjustments to align perfectly with her initial vision.



This project shows how combining client-provided sketches with professional drafting can lead to fast and accurate results. Sarah received a clean, permit-ready site plan ahead of schedule, with every detail clearly presented.
The biggest win here was turning an already-built foundation into a fully approved project without delays, giving Sarah confidence to continue her backyard upgrade smoothly.


Delivery Time

File Type

Paper Size

Revisions

Excellent 4.9/5 based on 947 reviews
Join thousands of homeowners & contractors.
Address Only – No Site Visit Required
– OR –
Please feel free to contact us
if you have any questions about our services
PHONE – CHAT – EMAIL
Recent Case Studies See all
Site Plans Delivered
5-Star Reviews
States Covered
Years of Experience
No matter where your property is located, we’ve got you covered
From coast to coast – and from the northern peaks to the southern shores – we’ve successfully completed projects in all states.