Ken, a repeat commercial client from Mesa, Arizona, needed a clear and accurate site plan to support a city sign permit application.
The plan had to show all key site elements around the building to ensure the signage met local requirements and spacing standards.
Order:
Ken selected our Premium Package Site Plan and requested delivery in 24 hours, and in PDF format, with no custom paper size.
No additional options were required, and there were no new structures to be added to the plan.
As a returning client, Ken trusted our team to handle the details even without reference files.
OUR SOLUTION:
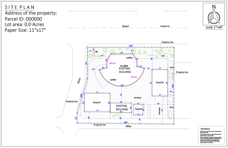
Our CAD designers prepared a professionally drafted site plan tailored for commercial sign permit review.
The plan was created without the need for an on-site visit, which helped reduce turnaround time and keep the process efficient.
Although Ken selected a 24-hour delivery, we completed the site plan faster than expected, in just 17 hours.
Ken’s Premium Site Plan drawing incuded all necessary information like:
REVISIONS
No revisions were requested.
The initial draft met all expectations and requirements.
SUMMARY
This project highlights how our team supports commercial clients with fast, dependable site plans for permitting.
Ken valued the quick turnaround and clarity of the final draft, which allowed his sign permit process to proceed without delays.
Reliable delivery and consistent quality continue to make us a trusted partner for repeat commercial projects.


DELIVERY TIME

FILE TIPE

PAPER SIZE

REVISON
PHONE – CHAT – EMAIL
– OR –
Recent Case Studies See all