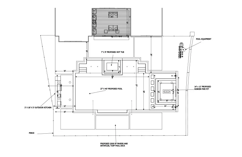
Thomas, a repeat residential client from Braselton, Georgia, needed a detailed and permit-ready site plan for an inground swimming pool project.
His plan included not just the pool, but also a hot tub, outdoor kitchen, sunken fire pit, and pool equipment layout, all of which had to be clearly shown for permit approval.
Thomas chose our Gold Package Site Plan, requesting delivery in PDF, JPG, and DWG formats.
He selected a 12-hour turnaround, along with additional features such as a vicinity map, topographical lines, and a new structure layout.
To support the process, he provided a technical drawing with precise dimensions and placement of all planned elements, which gave our team a strong starting point.
Address Only – No Site Visit Required

Excellent 4.9/5 based on 947 reviews
Thomas B. “5 Stars – exactly what I needed.”
Based on Thomas’s detailed input, our CAD designers created a comprehensive site plan tailored for swimming pool permit approval.
The plan was prepared as a non-certified site plan commonly accepted by most townships, and since no site visit was required, we were able to streamline the process and reduce turnaround time.
We completed the project faster than expected, in just 10 hours.
Thomas’s Gold Site Plan drawing incuded all necessary information like:
REVISIONS
Thomas requested 6 revisions, mainly focused on fine-tuning the placement of the pool features and outdoor elements.
Each update was handled quickly and precisely, ensuring the final version fully matched his vision and local requirements.

This project stands out for its level of detail and collaboration.
With clear input from Thomas and responsive updates from our team, the final site plan captured every element of his outdoor design.
The result was a precise, permit-ready plan that supports a smooth approval process and sets the foundation for a high-end backyard transformation.


Delivery Time

File Type

Paper Size

Revisions

Excellent 4.9/5 based on 947 reviews
Join thousands of homeowners & contractors.
Address Only – No Site Visit Required
– OR –
Please feel free to contact us
if you have any questions about our services
PHONE – CHAT – EMAIL
Recent Case Studies See all
Site Plans Delivered
5-Star Reviews
States Covered
Years of Experience
No matter where your property is located, we’ve got you covered
From coast to coast – and from the northern peaks to the southern shores – we’ve successfully completed projects in all states.