Ever tried explaining your dream deck without a drawing?
Suddenly everyone’s imagining a different patio. That’s where a deck plan saves the day – the visual roadmap that turns “I want something modern and wooden” into measurable layouts, materials, and structure.
This guide walks you through what deck plans look like, how to draw one yourself, and why even a simple outline can make your outdoor project look professionally planned.
Table of Contents
ToggleKey Takeaways:
- A deck plan is a detailed drawing that defines the design, layout, and structure of your deck project.
- Free and DIY deck plan tools allow homeowners to visualize layouts, materials, and styles before construction.
- A separate site plan, like the one GetASitePlan creates, is required to show your deck’s placement on the property for permit approval.
What Is a Deck Plan – Meaning and Purpose

source: pinterest
A deck plan is a scaled blueprint that communicates exactly how a deck will be built. It outlines the layout, dimensions, and materials, showing the relationship between stairs, railings, flooring, and surrounding features like a patio or porch.
Architects use deck plans to design safe and functional outdoor structures, while homeowners and builders rely on them to coordinate materials and costs before construction begins. A detailed deck plan helps visualize the project, prevent layout mistakes, and guide contractors through every installation step.
Simply put, the plan transforms your outdoor idea into an organized, buildable structure that balances aesthetics, durability, and functionality. And to understand how that works in practice, let’s look at what a complete deck plan actually includes.
Deck Plan Examples – What They Include?

source: pinterest
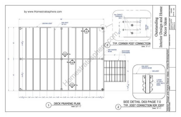
A good deck plan looks like a simplified architectural diagram – detailed enough for a builder to follow, yet clear enough for a homeowner to understand.
Most plans include a top-down layout with measurements, labeled stairs, railings, and furniture placement, as well as material notes for wood, composite, or metal components.
Professionally drawn examples often show dimensions, footings, and spacing between beams, ensuring the final construction is both safe and visually balanced. A deck plan drawing may also feature elevation views that show the deck’s height and connection to the floor or balcony.
Typical elements you’ll find in a deck plan include:
- Scaled layout with measurements and boundaries
- Labeled joists, posts, and railings
- Material list with sizes and quantities
- Elevation view showing height and stairs
- Notes for contractors or architects during construction
Together, these examples show the structure behind every successful project. But what if you’d like to design your own deck plan, even for free?
How to Get Deck Plans?

There are three main ways to get detailed deck plans, depending on your project size, budget, and design skills.
- Buying completed deck plans – Ideal if you want a professional layout ready to use or adapt for your home. Many architectural platforms sell pre-made blueprints with measurements, materials, and 3D previews.
- Downloading free deck plans – Great for DIY homeowners looking for inspiration or a simple starting point.
- Creating DIY deck plans – Best if you prefer to design everything yourself using graph paper or online tools.
Each method helps visualize your outdoor project before construction and ensures you’re working with a clear, accurate design.
1. Buying Completed Deck Plans
Purchasing completed deck plans is a quick and practical option for homeowners who prefer ready-to-use designs. Many online design platforms and independent architects sell downloadable blueprints that include precise dimensions, layout diagrams, and complete material lists.
Prices for standard plan sets typically range from $40 to $100, depending on deck size, complexity, and included features such as 3D views or material estimates. More detailed, custom plans may cost a few hundred dollars but often come with professional support for modifications.
Because planning and design directly affect materials, labor, and overall scope, these expenses should be factored into your total deck building cost.
Before buying, ensure that the design suits your yard layout and complies with local building codes. Once you’ve selected your plan, you’ll still need a site plan showing where the deck sits on your property – a service GetASitePlan.com provides for quick, permit-ready approval.
2. Free Deck Plans (and Material Lists)
Free deck plans are a good starting point for any homeowner planning an outdoor project.
These ready-made templates often include a deck plan material list, showing the type and quantity of wood, fasteners, and finishes required for construction. By following them, even a beginner can understand how materials, measurements, and layout come together in a real design.
Most websites offer free deck plans PDF downloads that are easy to print, scale, or modify. They provide a clear view of dimensions, railings, and footing placement, a useful guide before you start building or consulting a contractor.
Whether you’re sketching ideas or budgeting your renovation, a detailed material list helps organize the workflow and avoid unnecessary expenses.
3. DIY Deck Plan Drawings – Tools and Online Software

To create your own DIY deck plan, start by sketching the blueprint of your home’s exterior, noting doors, walls, and stairs that connect to your new structure. Then use graph paper or free online design tools to draw deck plans to scale.
Modern deck plan software lets you design in 2D or 3D, adjust dimensions, swap materials, and preview your layout instantly. These online tools often include drag-and-drop templates for stairs, railings, and furniture placement, making customization simple even for beginners.
If you want a clearer visual of how your deck fits into the whole yard, GetASitePlan also offers Landscape Renderings – simple, realistic 3D views that show the deck within your outdoor space.

Nevertheless, before finalizing, double-check all measurements and label every element clearly. A clean, accurate plan ensures your builder or architect can construct safely and efficiently – and helps you visualize your deck exactly as it will appear in your outdoor space.
Small & Custom Deck Plan Ideas

source: pinterest
Not every backyard needs a sprawling terrace – sometimes the smartest design comes from small deck plans that use space efficiently.
A compact layout can still feel spacious when it’s designed with clear zones for seating, dining, and stairs. Simple deck plans often focus on functionality: fewer steps, clean lines, and easy access to the house.
For unique homes, custom deck plans bring creative freedom. An architect or designer can modify the blueprint to match your home’s style, materials, and elevation, turning a basic sketch into an innovative and aesthetic outdoor space.
If you need inspiration for your next design, check out our Deck Ideas for Backyard page – it’s full of creative layouts that combine modern looks with practical construction.
Whether you’re sketching a compact layout or commissioning a custom design, understanding how a deck plan differs from a deck site plan will help you move confidently from vision to approval.
Deck Plan vs Deck Site Plan – Main Differences

Although they sound similar, a deck plan and a deck site plan serve very different purposes. A deck plan focuses on how the deck will be built – its layout, dimensions, and materials. A deck site plan shows where the deck sits on the property in relation to boundaries, but it’s typically created later in the permit process.
| Feature | Deck Plan | Deck Site Plan |
| Purpose | Shows how to build the deck | Shows where the deck sits on property |
| Used by | Builder, homeowner | City or permit office |
| Focus | Design and structure | Location and compliance |
| Includes | Layout, stairs, materials | Boundaries, house footprint |
Table 1: Deck plan and deck site plan differences overview
Moreover, while a deck plan shows how the structure is built, a 3D site plan rendering reveals exactly how it sits within the property.
Common Deck Plan Mistakes to Avoid

One of the most common errors is skipping accurate measurements – a few inches off can throw off the entire layout or create uneven railings and steps. Others forget to factor in building codes, which can affect staircase height, railing spacing, and overall safety.
Some homeowners choose materials based only on looks, ignoring durability or structural limits. Overloading a deck structure or underestimating support posts can cause long-term damage. Consulting an architect or builder early ensures your design remains functional and compliant.
Therefore, before finalizing your drawing, double-check local deck building codes to confirm your plan meets all safety standards.
FAQ – Deck Plans
How Do I Choose the Best Deck Plan Based on Yard Size and Style?
Pick a deck plan that fits your yard’s dimensions and complements your home’s style. Smaller yards need simple layouts; larger spaces can support multi-level or custom designs.
How Can I Order Custom Deck Plans Online With Material Estimates?
Submit your property details to an online design service to receive custom deck plans with material estimates. GetASitePlan.com offers accurate, permit-ready drawings tailored to your project.
Are There Affordable Deck Plan Templates Compatible With Popular Design Tools?
Yes. You can download affordable deck plan templates for programs like SketchUp or Trex Deck Designer and edit dimensions, materials, and layouts directly in those tools.
From Plan to Permit – Take it Step by Step with GetASitePlan

A well-prepared deck plan brings your outdoor vision to life, turning design ideas into a clear construction roadmap. But to move from design to approval, you’ll also need a site plan that shows your deck’s exact placement on the property.
At GetASitePlan.com, we specialize in creating accurate site plans for deck permits, patios, and other home projects. Our plans meet city requirements and make your deck permit submission fast and stress-free.
Upload your property details today and get a deck site plan tailored to your project within 24 hours.




